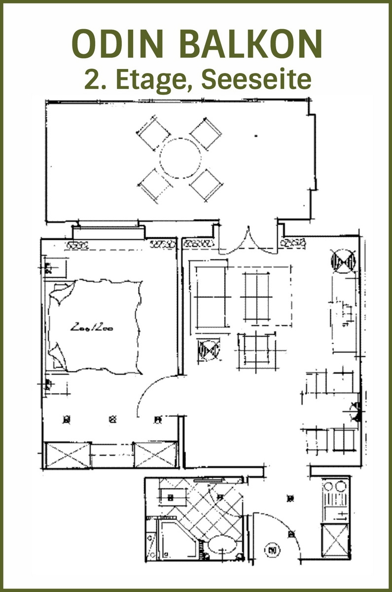
Dieses 2-Zimmer Apartment verfügt zusätzlich über einen von 2 Zimmern aus begehbaren Balkon. Der Meerblick ist von dieser Stelle aus garantiert.
Weiterhin verfügt das Apartment über:
Wohnzimmer mit Sitzecke und Schlafcouch, integrierter Essplatz mit eingebauter kleiner Pantry-Küche, Flachbild-TV mit Radio, Telefon, Safe
separates Schlafzimmer mit 2 modernen Boxspringbetten als Doppelbett
separates Badezimmer mit Dusche/WC, Haartrockner, Kosmetikspiegel
wahlweise Laminat oder Teppichboden
keine Klimaanlage
Zimmergröße: ca. 37m²



