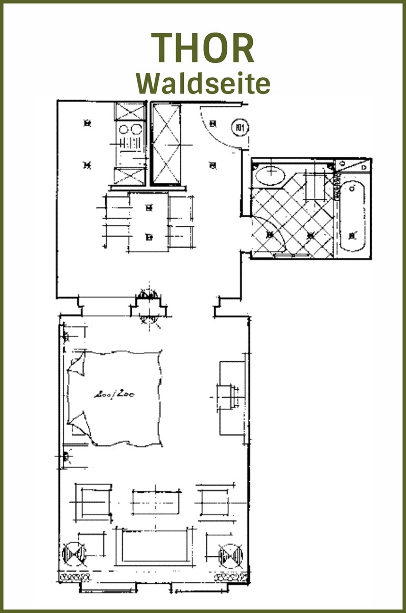
Dieses 1-Zimmer Apartment bietet Aussicht zur Waldseite.
Weiterhin verfügt das Apartment über:
Sitzecke mit Schlafsofa, Flachbild-TV mit Radio, Telefon, Safe
integrierter Essplatz mit eingebauter kleiner Pantry-Küche
2 moderne Boxspringbetten als Doppelbett
separates Badezimmer mit Wanne, WC, Haartrockner, Kosmetikspiegel
wahlweise Laminat oder Teppichboden
keine Klimaanlage
Zimmergröße: ca. 46m²


